American School of Asunción – STEAM
This project participated in the competition for the second new building of the American School of Asuncion, intended to gather all STEAM-related activities (Science, Technology, Engineering, Art, Math) by demolishing part of the existing old buildings.
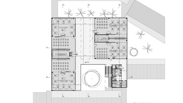
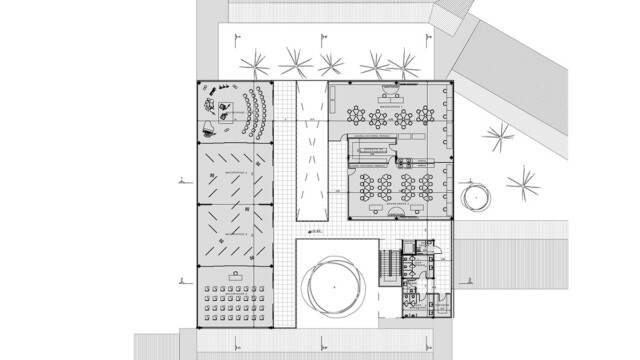
The overall idea is based on the previous building experience that demanded a limited use of intermediate spaces. Aimed at maximizing natural light and ventilation, this project opens to all sides, with ample and transparent ground-level classes that can be used for events and expositions.
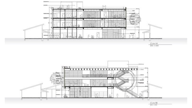
To have a compact volume we proposed the use of vertical lifts instead of ramps, thus preserving a central tree that shapes the void of the entire volume. The choice of a lift also created the conditions to a future development in the top floor, adding a whole new level with the same building footprint. The entire volume is protected from excessive sunlight with a modular ceramic facade, which can be moved with a simple mechanical system to enjoy the elevated vistas to the surroundings.
| Client: | ASA |
| Type: | Institutional |
| Area: | 3,000 sqm. |
| Location: | Asunción, Paraguay |
| Status: | Unbuilt – Competition |
| Year: | 2017 |
| Project Team: | R. Resck, F. Carrizosa, X. Casabianca |
| Role: | Architect, Co-author |
















